Voorstraat 36, STAD AAN 'T HARINGVLIET - Huysvisie Makelaars
Voorstraat 36

Voorstraat 36

STAD AAN 'T HARINGVLIET

vraagprijs

verkocht

Ook je woning succesvol verkopen? Neem dan contactmet ons op

Gratis waardebepaling

Omschrijving

Welkom bij dit karakteristieke monument aan een sfeervolle straat. Een straat vol historie, met bijzondere gevels en een charmante uitstraling. Gelegen tussen de haven en de kerk, op een toplocatie met een perceel van maar liefst 203m². In de tuin vindt u een bijgebouw dat multifunctioneel gebruikt kan worden.

De woning is toe aan modernisering, maar dat opent juist de deur naar een unieke kans: creëer jouw ideale thuis, terwijl de authentieke charme van het pand behouden blijft.

Indeling
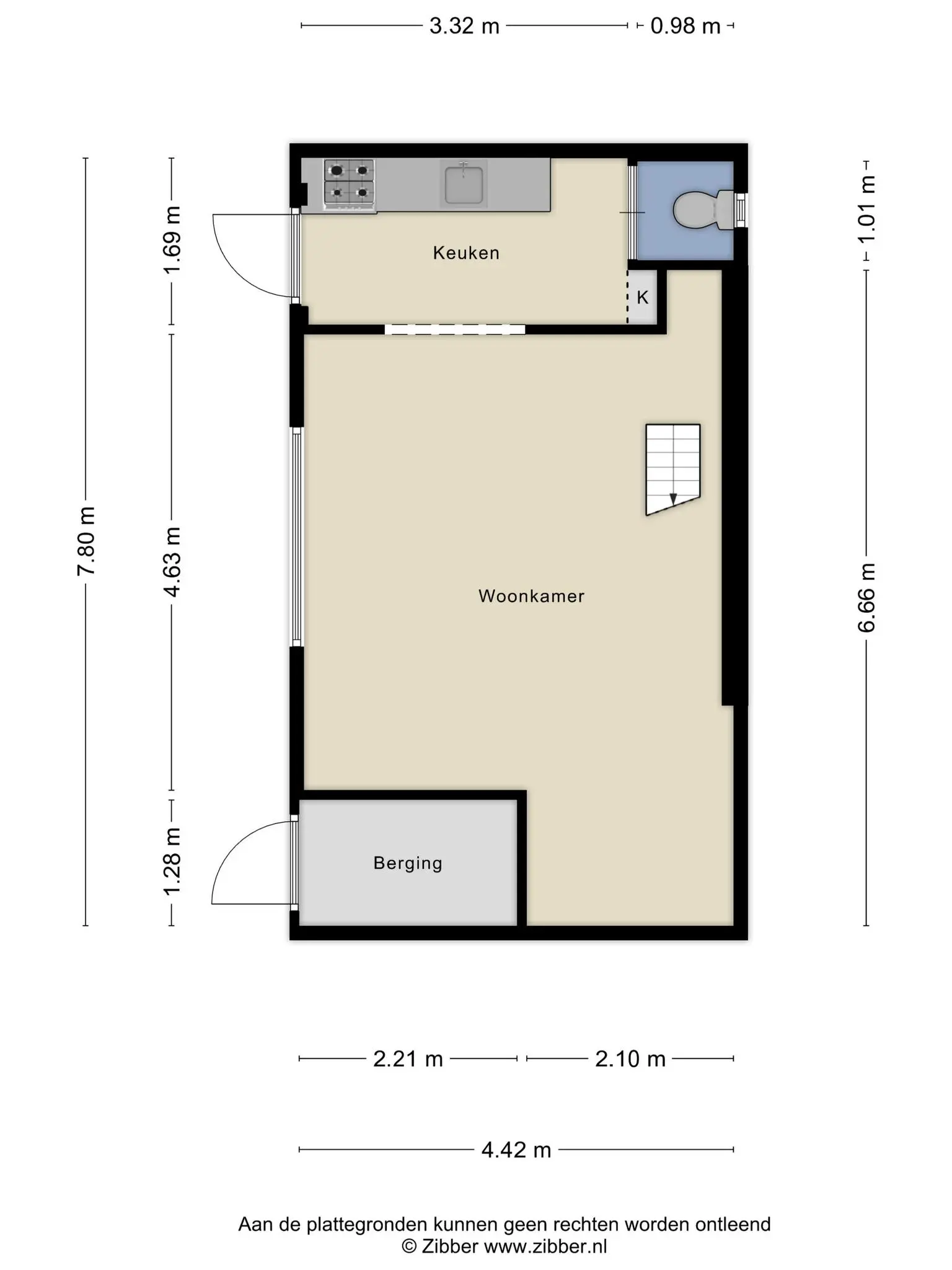
Via de hal, waar u tevens de vaste trap naar de eerste verdieping vindt, betreedt u het leefgedeelte. De woonkamer van circa 30m² springt direct in het oog dankzij het plafond met authentieke houten balken – een sfeervol detail dat herinnert aan de rijke historie van de woning. Aansluitend loopt u door naar de keuken, die is uitgerust met een spoelbak, een 4-pits gaskookplaat, afzuigkap, oven en koel-/vriescombinatie. Vanuit de keuken heeft u toegang tot het toilet met fonteintje en bereikt u via de achterdeur de royale achtertuin.

Op de eerste verdieping, met een oppervlakte van circa 47m², bevinden zich de badkamer, een keukenblok en de toegang tot de tweede verdieping. Het keukenblok is voorzien van de aansluitingen van wasmachine/droger. Ook is hier een boiler voor warm water en is er een gootsteen en een 2-pits gasstel. De ruimte is flexibel in te delen en biedt mogelijkheden voor het realiseren van meerdere slaapkamers of een hobby-/werkkamer. De compacte maar functionele badkamer is voorzien van een toilet en douche. Een vaste houten trap leidt u verder naar de zolderverdieping.

De grotendeels open zolder biedt circa 18m² aan ruimte en beschikt over bergruimte, een houten vloer en wordt momenteel gebruikt als slaapkamer. Ook is er toegang tot de slaapkamer aan de voorzijde van de woning van circa 8m².

Tuin
De achtertuin ligt op het noordwesten en heeft tot het bijgebouw een diepte van circa 15 meter. Vanwege deze diepte is er de mogelijkheid om te genieten van zowel zon als schaduw. Vanuit de tuin komt u bij het bijgebouw dat voor meerdere doeleinden gebruikt kan worden. Denk hierbij aan dubbele bewoning, verblijf voor oudere kinderen, hobbyruimte of een kantoorruimte. Bij binnenkomst kom je eerst in de keuken, die toegang biedt tot de tuinkamer. In deze ruimte bevindt zich ook een trap naar de zolderverdieping. Dit bijgebouw wordt verwarmd middels een potkachel en gevelgaskachel. Er is een gasleiding aanwezig waardoor er ook gekozen kan worden voor een gaskachel.

Algemeen
Bouwjaar 1747, rond 1978 is het geheel herbouwd in oude stijl behalve de voorgevel en het houten geraamte. Deze zijn nog origineel. De woning is volledig dubbel steensmuur en geïsoleerd met glaswol.
Inhoud 608m³.
203m² eigen grond.
Disclaimer: de oppervlakte van het bijgebouw mag worden toegekend als gebruiksoppervlakte wonen dus daarom is de woonoppervlakte van de woning en het bijgebouw bij elkaar opgeteld. De woning heeft een gebruiksoppervlakte wonen van 112m² en het bijgebouw van 57m².
De kozijnen zijn uitgevoerd in hout en voorzien van enkel glas.
De woning wordt verwarmd middels een houtkachel in de voorkamer en gevelkachels op elke etage.
In april 2025 is de riolering in de tuin tot aan de gevel van de woning vervangen. Ook is de riolering in het bijgebouw vervangen.
Oplevering in overleg.


Bij woningen welke gebouwd zijn voor 1980 zal er een ouderdomsclausule in de koopovereenkomst worden opgenomen. Bij woningen welke gebouwd zijn voor 1993 zal er ook een asbestclausule in de koopovereenkomst worden opgenomen.
Deze woning verkeert in niet optimale staat en heeft onderhoud nodig op verschillende plekken daarom is hier rekening mee gehouden in de vraagprijs. Koper aanvaardt de woning zoals deze is in de huidige staat. 
Lees meer

Kenmerken

Overdracht

Status
verkocht
Aanvaarding
in overleg

Bouw

Soort woning
woonhuis
Soort woonhuis
eengezinswoning
Type woonhuis
vrijstaande woning
Aantal woonlagen
5
Bouwjaar
1747
Onderhoud binnen
redelijk
Onderhoud buiten
redelijk
Voorzieningen
natuurlijke ventilatie
Isolatie
dakisolatie, muurisolatie

Energie

Verwarming
gaskachels, houtkachel

Oppervlakten en inhoud

Woonoppervlakte
169 m²
Perceeloppervlakte
203 m²
Inhoud
608 m³
Inpandige ruimte oppervlakte
3 m²

Indeling

Aantal kamers
6

Buitenruimte

Ligging
aan rustige weg, in woonwijk
Tuin
achtertuin met een oppervlakte van 128 m² en is gelegen op het noordwesten

Garage / Schuur / Berging

Garage
geen garage
Parkeergelegenheid
openbaar parkeren
Schuur/berging
vrijstaand steen

Foto's

Locatie

Downloads

Video's

Vraag een bezichtiging aan of neem contact met ons op