Schieweg 243B, ROTTERDAM - Huysvisie Makelaars
Schieweg 243B
Schieweg 243B
Schieweg 243B
Schieweg 243B
Schieweg 243B
Schieweg 243B
Schieweg 243B
Schieweg 243B
Schieweg 243B
Schieweg 243B
Schieweg 243B
Schieweg 243B
Schieweg 243B
Schieweg 243B
Schieweg 243B
Schieweg 243B
Schieweg 243B
Schieweg 243B
Schieweg 243B
Schieweg 243B
Schieweg 243B
Schieweg 243B
Schieweg 243B
Schieweg 243B
Schieweg 243B
Schieweg 243B
Schieweg 243B
Schieweg 243B
Schieweg 243B

Schieweg 243B

ROTTERDAM

vraagprijs

€ 300.000,- k.k.

Interesse?

Neem contact met ons op!

Neem contact met ons op

Omschrijving

Starters opgelet! Wonen op een plek om verliefd op te worden - een fijn appartement op de eerste etage aan de rand van Rotterdam Bergpolder. Welkom op de Schieweg!
- Perfecte ligging in Rotterdam Bergpolder
- Goede afwerking en modern woongenot
- Veel ruimte en licht in de kamers

Een echte leuke kans voor de starters in de Rotterdamse markt. Hier wonen is pas écht fijn. De binnenstad letterlijk om de hoek en op steenworp afstand van alle stadsgemakken en voorzieningen. Denk hierbij aan supermarkten, scholen, winkels en sportfaciliteiten. Uitvalswegen en snelwegen zijn binnen enkele minuten bereikbaar, de omliggende steden zijn dus ook eenvoudig aan te rijden. Meer willen shoppen of genieten van hapjes en drankjes? Door de goede voorzieningen van het openbaar vervoer ligt de binnenstad van Rotterdam ook aan je voeten, hier zijn talloze restaurants, cafés en winkelmogelijkheden. Diverse groene projecten worden in de komende jaren om de hoek gerealiseerd, waaronder het Hofbogen- en het Hofplein park. Dit is de ultieme ervaring van wonen in luxe én in de stad!

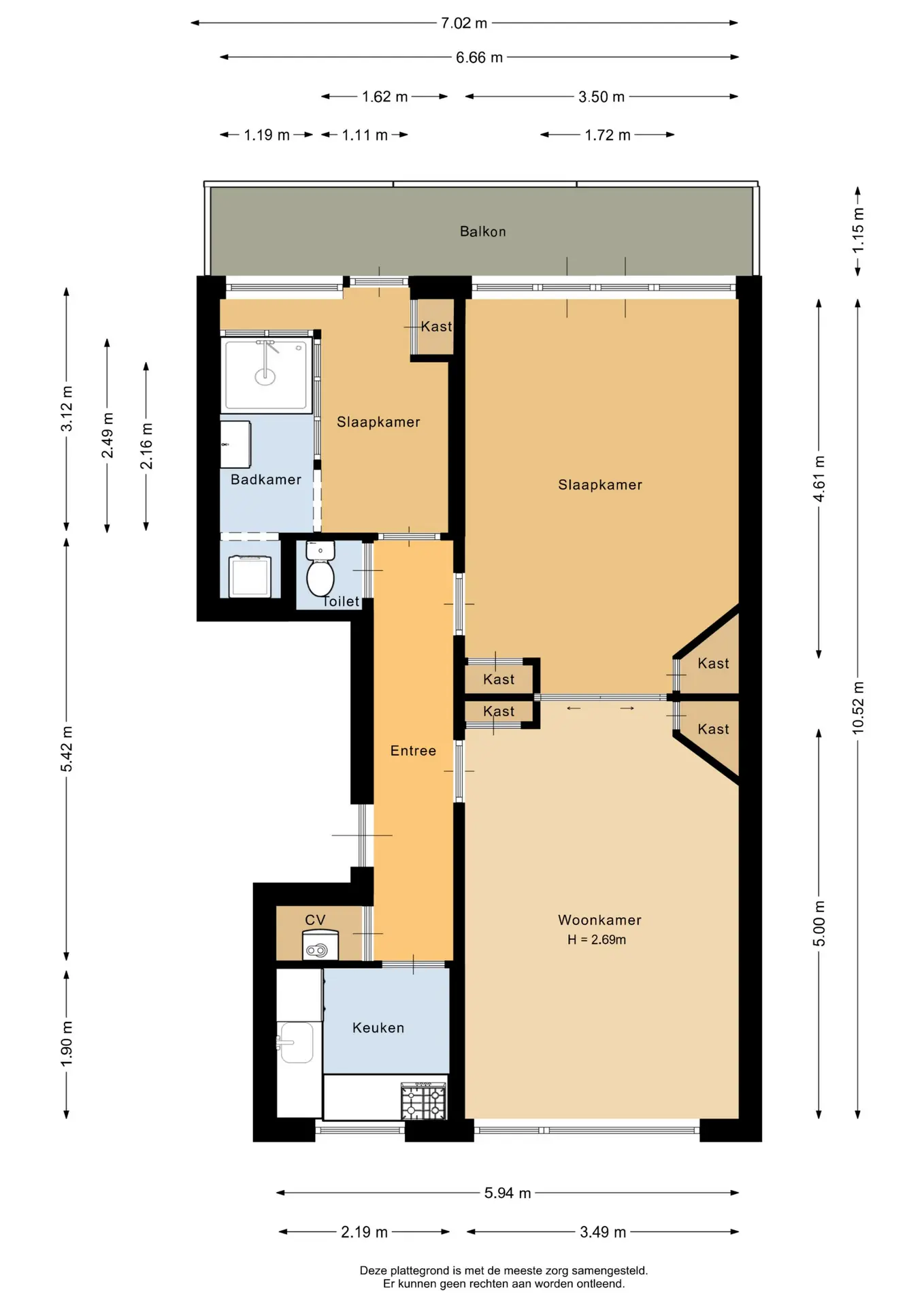
De indeling van de woning is als volgt:
De entree is in de lange hal. De meterkast is daar ook aanwezig. Aan de rechterzijde is als eerste de vaste kast met de boiler te vinden. Dan volgt de mooie keuken aan de voorzijde. Deze is in een hoekopstelling voorzien van een 4-pits gaskookplaat, gootsteen, koelkast met vriesvak, oven en veel kastruimte, dan volgt de royale living aan de voorzijde, deze is door de grote raampartijen erg licht. Een gaaf detail; de prachtige schuifdeuren met vaste kasten zijn nog aanwezig in de woning. Aan de achterzijde is de grote slaapkamer aanwezig, door de enorme ruimte is er ook voldoende plek voor een grote kast. Middels de openslaande deuren is het balkon op het oosten te bereiken. Op de hal is een losse toiletruimte aanwezig. De tweede slaapkamer is een fijne extra werkplek met ook de toegang naar de badkamer. In de slaapkamer is een vaste kast en tweede doorgang naar het balkon. De badkamer is voorzien van een douche, wastafel met meubel en ook de wasmachine aansluiting. Echt een compleet appartement op een populaire locatie!

In de wijk is het betaald parkeren, vergunningen zijn aan te vragen bij de Gemeente Rotterdam. De woning is rondom voorzien van houten en kunststof kozijnen met daarin dubbele (deels HR++) beglazing. Ook is er een losse bergruimte aanwezig. Echt een leuke starterswoning!

Bijzonderheden:
- Bouwjaar: 1937
- Woonoppervlakte: 60m2
- Inhoud: 205m3
- Balkon: 8m2
- Berging: 3m2
- Volledig eigen grond
- Verwarming/warm water: moederhaard en een boiler
- VvE bijdrage: € 63,- per maand
- Extra clausules in de koopakte: asbest- en ouderdomsclausule
- Energielabel: D
- Oplevering: in onderling overleg

Deze presentatie is met zorg samengesteld. Desondanks kunnen aan deze presentatie geen rechten worden ontleend. Daarnaast aanvaardt de makelaar of zijn opdrachtgever geen aansprakelijkheid voor de in de presentatie verstrekte informatie. Mocht de presentatie vragen oproepen, dan nodigen wij u van harte uit deze onder onze aandacht te brengen.

Koopovereenkomst pas rechtsgeldig na ondertekening: Een mondelinge overeenstemming tussen de particuliere verkoper en de particuliere koper is niet rechtsgeldig. Met andere woorden: er is geen koop. Er is pas sprake van een rechtsgeldige koop als de particuliere verkoper en de particuliere koper de koopovereenkomst hebben ondertekend. Dit vloeit voort uit artikel 7:2 Burgerlijk Wetboek. Een bevestiging van de mondelinge overeenstemming per e-mail of een toegestuurd concept van de koopovereenkomst wordt overigens niet gezien als een 'ondertekende koopovereenkomst'.

Toelichtingsclausule NEN2580: De Meetinstructie is gebaseerd op de NEN2580. De Meetinstructie is bedoeld om een meer eenduidige manier van meten toe te passen voor het geven van een indicatie van de gebruiksoppervlakte. De Meetinstructie sluit verschillen in meetuitkomsten niet volledig uit, door bijvoorbeeld interpretatieverschillen, afrondingen of beperkingen bij het uitvoeren van de meting.
Lees meer

Kenmerken

Overdracht

Vraagprijs
€ 300.000,- k.k.
Status
verkocht onder voorbehoud
Aanvaarding
in overleg

VvE checklist

Inschrijving KVK
Ja
Jaarlijkse vergadering
Ja
Periodieke bijdrage
Ja (63,00 per maand)
Reservefonds aanwezig
Ja
Onderhoudsplan
Ja
Opstalverzekering
Ja

Bouw

Soort woning
appartement
Soort appartement
bovenwoning
Aantal woonlagen
1
Woonlaag
1
Bouwjaar
1937
Open portiek
nee
Onderhoud binnen
goed
Onderhoud buiten
goed
Voorzieningen
tv kabel, natuurlijke ventilatie
Isolatie
dubbel glas

Energie

Energielabel
D
Verwarming
moederhaard
Warm water
elektrische boiler eigendom

Oppervlakten en inhoud

Woonoppervlakte
60 m²
Bergruimte oppervlakte
3 m²
Buitenruimte oppervlakte
8 m²

Indeling

Aantal kamers
3

Buitenruimte

Ligging
in centrum

Garage / Schuur / Berging

Garage
geen garage
Parkeergelegenheid
betaald parkeren, parkeervergunningen
Schuur/berging
vrijstaand hout

Plattegronden

Locatie

Video's

Vraag een bezichtiging aan of neem contact met ons op